
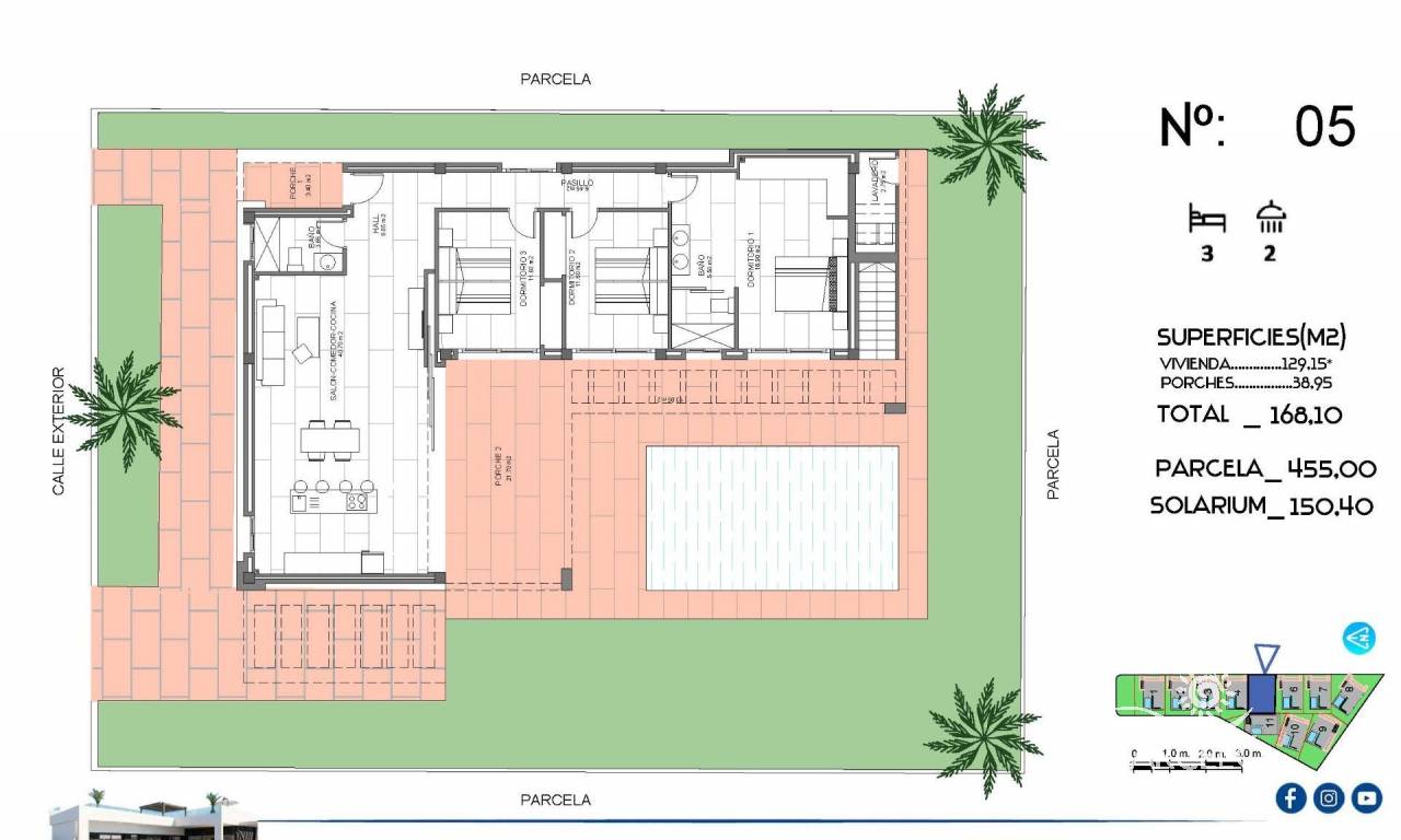
New Build Luxury Villas in La Finca Golf, Algorfa Exclusive One floor Villas next to the Golf La Finca in Costa Blanca South Discover this exclusive new build residential project of 11 independent villas located within the prestigious La Finca Golf Resort in Algorfa, one of the most sought after areas of the Vega Baja, Costa Blanca South. Surrounded by green landscapes, citrus groves and rolling fairways, this location offers tranquillity, privacy and a high quality Mediterranean lifestyle, while remaining close to all essential services and coastal attractions. Modern Single Level Villas with Private Pool and Solarium Each villa is thoughtfully designed on one level, offering comfort and functionality throughout. The properties feature 3 spacious bedrooms and 2 modern bathrooms, an open plan American style kitchen, and a bright living and dining area with large windows that open directly onto the terrace and private garden. Outdoors, each villa enjoys a private swimming pool, parking space within the plot, and an impressive 150 sqm private solarium, ideal for enjoying the sun all year round. For buyers seeking additional space, there is the option to add a basement or a fourth bedroom on an upper level at an extra cost, allowing you to tailor the home to your personal needs. High Quality Specifications and Elegant Finishes These villas are built with premium materials and finishes to ensure comfort, efficiency and modern style. Features include a reinforced security entrance door, motorized shutters, fully furnished kitchens equipped with appliances, and bathrooms complete with furniture, mirrors and shower screens. The rooftop solarium is delivered with a summer kitchen and pergola, creating the perfect setting for outdoor dining and relaxation. An interior and exterior LED lighting package is also included, enhancing both design and ambience. Prime Location in La Finca Golf Resort La Finca Golf Resort is renowned for its championship golf course, luxury hotel, spa facilities, restaurants and sports areas, all set within a secure and well maintained environment. Algorfa is a charming Spanish village offering a relaxed atmosphere, local shops and traditional restaurants, while nearby towns provide a wider range of services. Key Distances La Finca Golf Club: on site Guardamar del Segura beaches: 15 km Torrevieja and Orihuela Costa shopping centres: 15 km Almoradi, Benijofar and Ciudad Quesada: 5 to 10 km Alicante International Airport: 35 km Mediterranean Lifestyle and Smart Investment With over 300 days of sunshine per year, excellent road connections and proximity to beaches, golf courses and commercial areas, these villas are ideal as a permanent residence, holiday home or investment opportunity on the Costa Blanca. Secure Your New Villa in La Finca Golf Today Do not miss the opportunity to own a modern villa in one of the most exclusive golf resorts in Algorfa. Contact us today for more information or to arrange a private viewing.
This info given here is subject to errors and do not form part of any contract. The offer can be changed or withdrawn without notice. Prices do not include purchase costs.