
Vi er glade for å presentere denne luksusvillaen, klar til ferdigstillelse i juni 2025, som ligger i hjertet av Ciudad Quesada. Bare noen hundre meter unna ligger hovedgaten i byen, hvor du finner alt du trenger, som butikker, restauranter, barer, banker og mye mer.
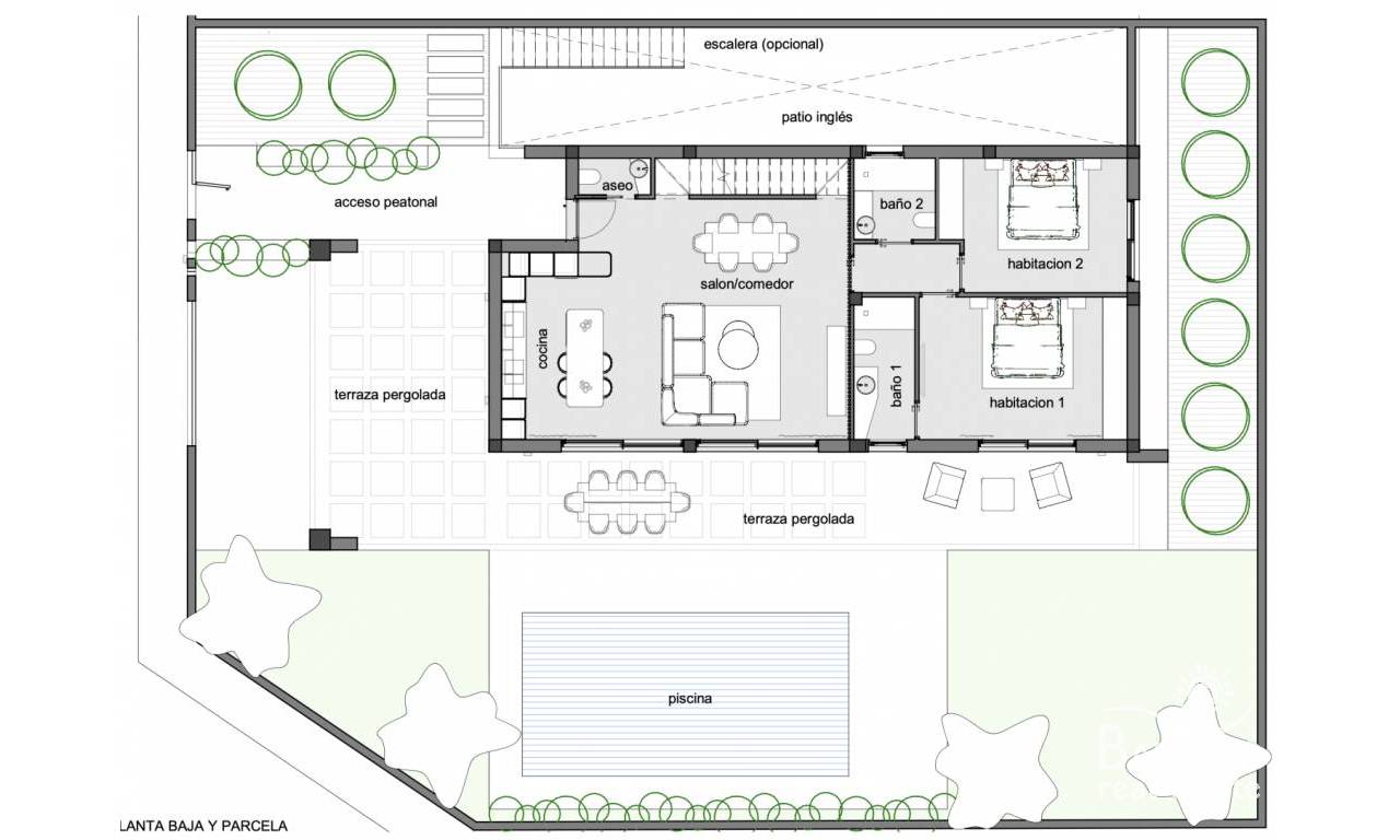
Denne utrolige eiendommen er fordelt over 4 etasjer: kjeller, første etasje, første etasje og solarium. Den romslige hjørnetomten gir maksimal plass og privatliv. Utenfor finner du et privat svømmebasseng, parkering, vakre terrasser og sittegrupper med hager og grønne områder å nyte.
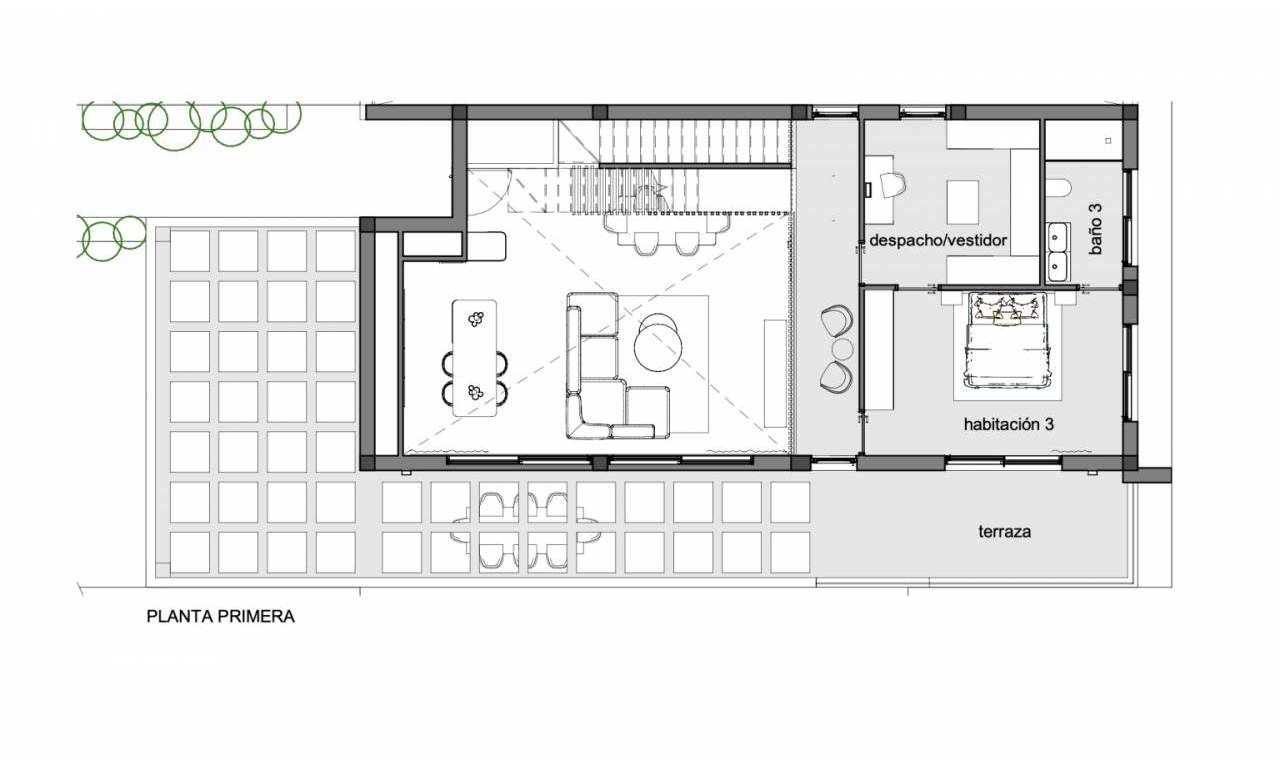
Når du kommer inn i villaen i første etasje, fanger de doble takhøydene i stuen umiddelbart øyet. Glassvinduer og -dører gir rikelig med lys og skaper en følelse av luksus og rom. I denne etasjen er det moderne kjøkken, gjestetoalett og to romslige soverom med hvert sitt bad. I første etasje ligger den vakre mastersuiten med soverom, garderobe, kontor og bad. Solterrassen med valgfri pergola tilbyr fantastisk utsikt over omgivelsene, innsjøene og havet.
I kjelleren i villaen har du en fullverdig plass, som du kan utvide etter ønske med mer oppholdsrom, soverom, vaskerom m.m.
Denne villaen er perfekt og har en enda bedre beliggenhet! Kontakt oss i dag, besøk oss og oppdag mer.
Denne informasjonen gitt her er underlagt feil og inngår ikke i noen kontrakt. Tilbudet kan endres eller trekkes tilbake uten varsel. Prisene inkluderer ikke andre kostnader